NOWA KOLEKCJA
Model Manu
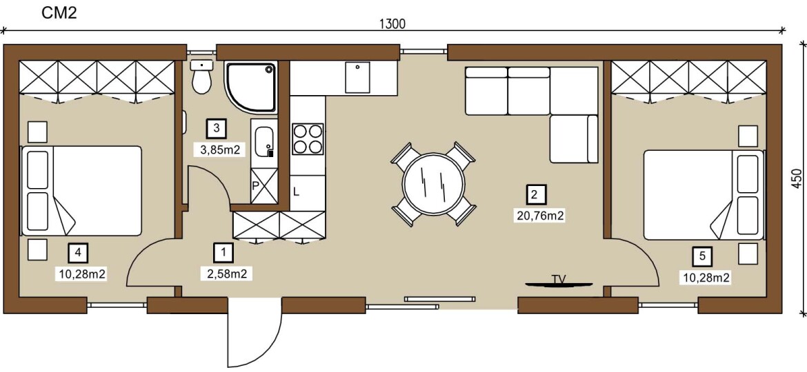
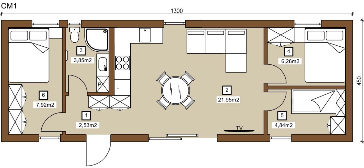
NOWY MODEL
Model Manu

Elewacja w modelach z serii Premium wykonana jest z wytrzymałej deski kompozytowej Resysta oraz paneli z blachy na rąbek stojący. Wnętrze wykończone materiałami wyłącznie wysokiej jakości, panelami winylowymi, panelami MDF, oraz naturalnym drewnem.
W całym domu zastosowano ogrzewanie podłogowe w postaci elektrycznych mat grzewczych. Każde z pomieszczeń posiada niezależne sterowanie temperaturą za pomocą nowoczesnego ekranu dotykowego


Każdy z domów w standardzie wyposażamy w pełną zabudowę kuchenną wraz ze wszystkimi sprzętami takimi jak: lodówka, zmywarka, płyta grzewcza, piekarnik oraz okap.
W każdym z domów znajduje się kompletna łazienka, wyposażona we wszystkie sprzęty. Do pełnej użyteczności domu potrzebne jest jedynie podłączenie mediów.


Taśma Ledowa zainstalowana w przedniej części domu oraz kinkiety elewacyjne tworzą niepowtarzalny klimat, czyniąc nasze domy wymarzonym miejscem do spędzania wolnego czasu.